1 Rookie
•
3 Posts
0
185
April 12th, 2025 18:10
Dell R640 - not detecting some NVMe U.2 drives
I added the required cabling for supporting NVMe drives on slots 2-9 on a dell R640. Cables used are F2V74 and 684MR. After this NVMe drives on slots 2,3,7,8,9 are recognized. But 4,5,6 are not. I have swapped recognized drives from 2,3,7,8,9 into 4,5,6 to rule out any drive issues and still no luck. I think once it recognized one drive among 4,5,6 but not sure which one. But other than that one instance, it is always 2,3,7,8,9.
I have reseated the drives and cables many times.
Please PCIe slots overview from iDRAC shows all 2-9 as NVMe U.2 slots.
No Events found!
DELL-Young E
Moderator
•
5.2K Posts
0
April 14th, 2025 00:00
Hello, I found an old post that might help you, could be backplane issue or the cable:
https://www.dell.com/community/en/conversations/poweredge-hardware-general/nvme-cable-for-dell-r640/647fa14ff4ccf8a8de6854da?msockid=1a5e8444c37364fc023690acc29e65bd
https://www.dell.com/community/en/direct-messaging
Respectfully,
DELL-Young E
Moderator
•
5.2K Posts
0
April 21st, 2025 02:35
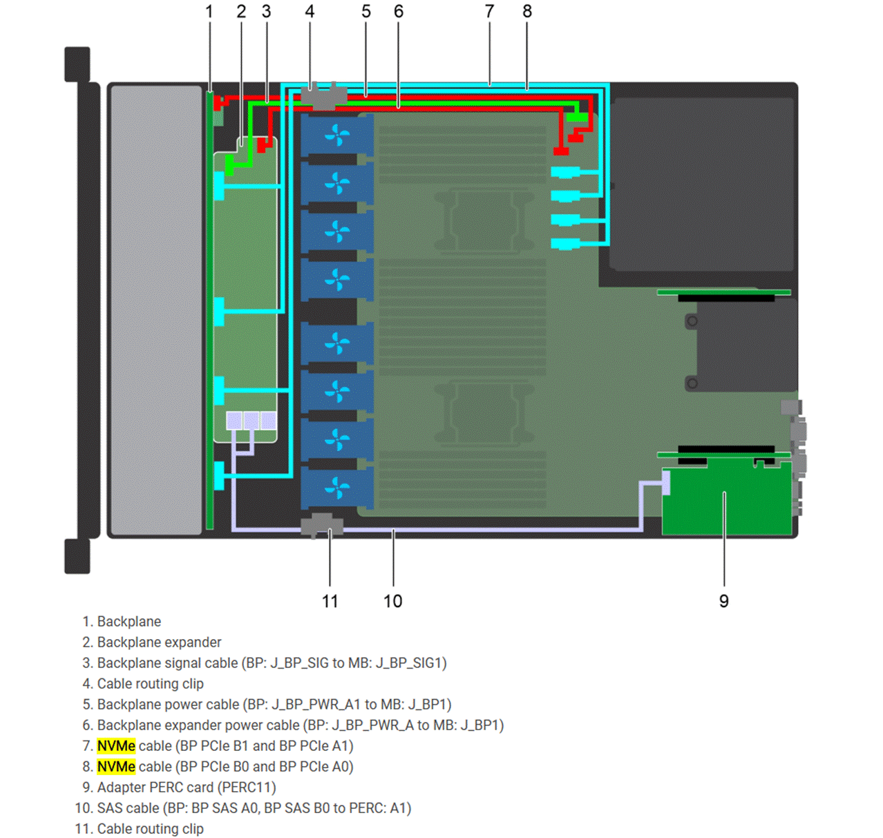
Hello, see
Figure 13. Cable routing -10 x 2.5 drive backplane
Dell EMC PowerEdge R640 Installation and Service Manual | Dell US
Must meet all the requirements. Could you double check?
DELL-Rey G
3 Apprentice
•
1.1K Posts
0
April 14th, 2025 15:48
just to be sure, I suggest looking at Strorage >physical disks in idrac to make sure they are seen/not seen. As Young posted in his link, you should have the 2 part numbers you stated, which is actually 4 separate ribbon cables. Each ribbon cable controls 2 drive slots. drives 6 and 7 would be controller by the same cable/connection. so if only one of those is recognized, I would lean towards a backplane problem. In the image Young posted, there are 2 red cables, I am not sure if you need both of those for an nvme only backplane, but one of them is certainly necessary to provide power to the backplane.
Rey
#Iwork4Dell
guls
1 Rookie
•
3 Posts
0
April 16th, 2025 01:48
For each cable all 4 ribbon cables are connected. One issue I noticed is out of the 4, one of them connects to a port that has bent/damaged pins on the connecter. But I was expecting that to impact two disks on one the ranges 2-5 or 6-9. After trying to straighten the pins, I was able to get one more in the race 2-5 to. be recognized. I have no idea why 6 is not recognized.
Do I need change the entire motherboard for the impacted connector?
DELL-Joey C
Moderator
•
3.9K Posts
0
April 16th, 2025 06:35
Hi,
Let's only troubleshoot on cable 684MR since you manage to get 2,3,4,5 online. Only 6 and 7 cable which needed attention. Try checking again the cable, to see if there is any bent pins or contact issue. I've not tried swapping cables before, but if you are willing to try, try swapping 6/7 cable with 8/9. Can you confirm it's not a slot issue by swapping 6 and 7. Once you have checked all of the above, if issue persist, perhaps recommended to get another cable to test the issue before concluding it's the mainboard connector.
guls
1 Rookie
•
3 Posts
0
April 19th, 2025 02:55
Storage summary shows errors for all name drives:
But if I run lsblk:
